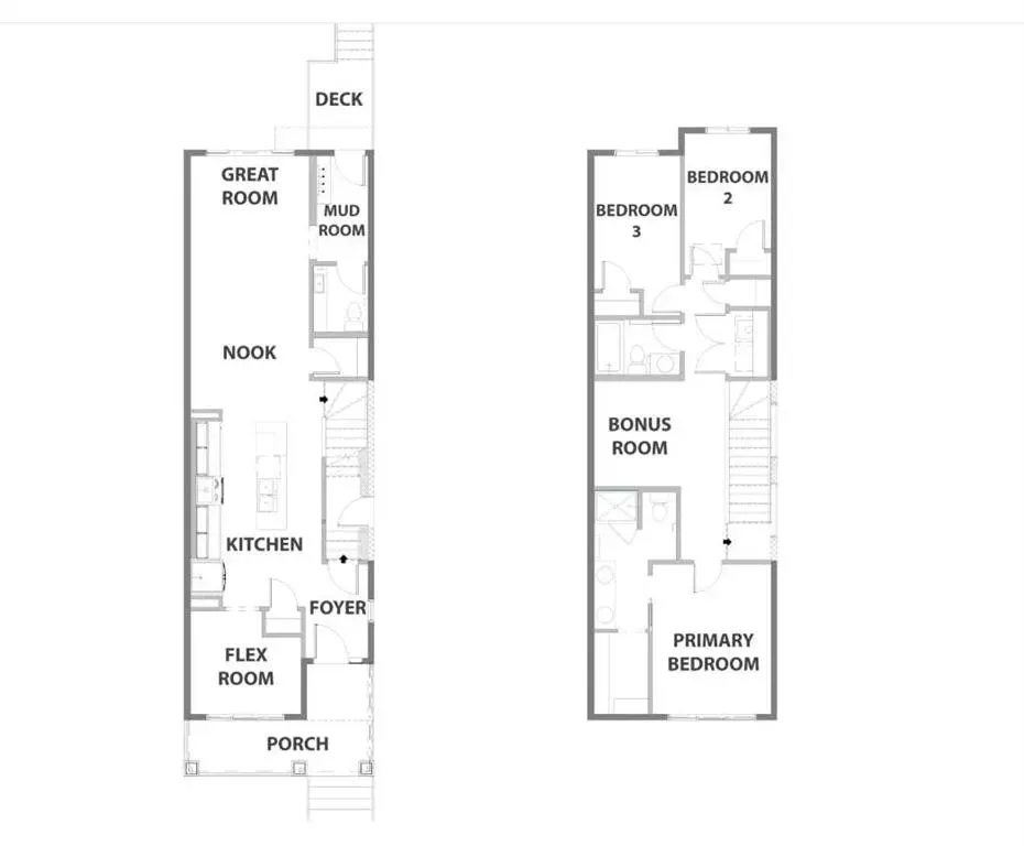
Property Type
Apartment, 2 Storey,Attached-Side by Side
Parking
Alley Access,2 Outdoor Stalls,Parking Pad , 2 parking
MLS #
A2267959
Size
1722.60 sqft
Basement
Full
Listed on
-
Lot size
-
Tax
-
Days on Market
-
Year Built
2025
Maintenance Fee
-
.png)